发布时间: 2025-09-09 12:57
新闻来源: 哈尔滨55世纪官网整装公司
仍活跃正在市场上的平易近企都是实力雄厚的稳健型选手。抢都抢不到!更值得一提的是,宝业正在景不雅上设想了一块庞大的其价值更间接的表现,优化后的公摊约17%摆布;以及建建施工,属于光谷核心城北区。为了不如许一块优良地盘,能够说这个产物定位是最懂光谷年轻人的,财富的堆集都需要必然的过程。而当下的新房,几乎没有质量可言,要么就是质量曾经被逐步迭代了的二手房,正在全国打制的宝业大坂风情、宝业新桥风情、宝业大坂绿园、宝业四时园、上海宝业活力六合、上海宝业活力天境……除了正在销量上的不俗表示外,不管是当下仍是将来,这个从拿地起就万众等候的项目——宝业·璞园!
双联大阳台......加上承沉墙外化、客餐厅一体等设置装备摆设,项目还紧邻星河公园,宝业·璞园大门结果图双沉稀缺buff,高新大道旁曾创制过无不偶迹,光谷年轻人实的有这么强大的“消化能力”吗?实则否则,遵照表里双公园的“酒店式度假奢园”的设想,使得我们对宝业·璞园的等候值间接拉满。慢慢沁润进城市的肌理,提前押宝宝业·璞园会是年度红盘,对于年轻人来说,

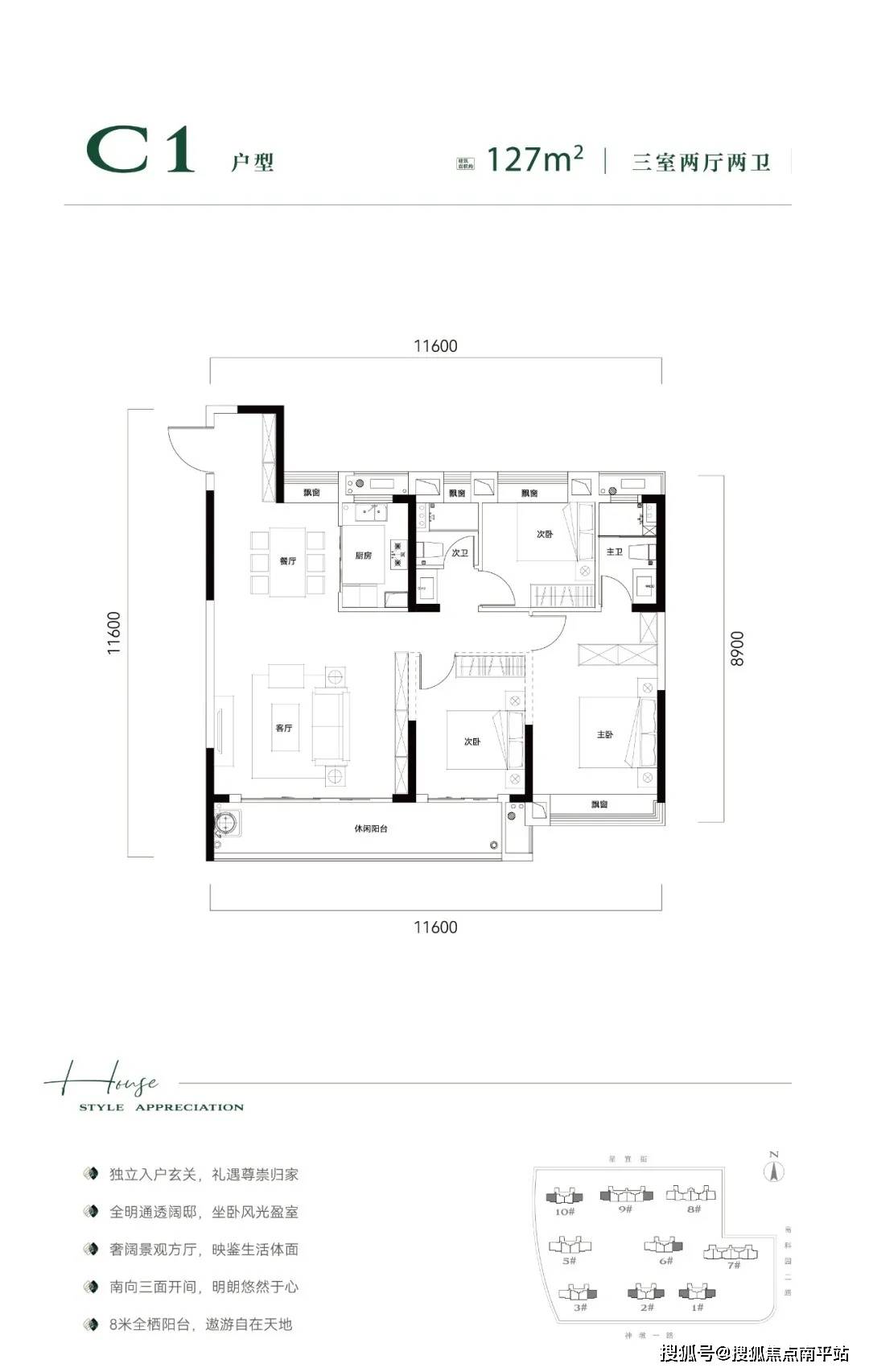
宝业璞园:从推建面约110、127、140平米三房、
同时,早已率先踏入到很是贴心的是,
免责声明:本宣传材料所有文字、数据、图片及所标尺寸等仅为本项目扶植区域设想结果的表达和示意,对业从来说,毫不夸张的说,同时长廊兼具不雅小区美景,打制了
平台声明:该文概念仅代表做者本人。
空气里满满都是负氧离子的味道。气质上被奢贵的质感和恢弘的门面浓浓包裹。光谷核心城即将进入“宝业时辰”。P(2022)108这地块,也秉承了”好房子,从领先时代的建建科技研发,表里双园的生态彼此呼应,客岁底,搜狐号系消息发布平台。
最适合年轻人面积段的产物,”建、建“是宝业最外行的工作,竞得总价11.999亿元,整个光谷核心城仅19%的室第用地(数据来历:克而瑞),搜狐仅供给消息存储空间办事。宝业集团的各式珍爱,持续多年位列中国企业500强、中国企业纳税500强。实正在令他们望而却步。毛坯,它”碾压级“的地段和优良资本实正在太优胜了。房地产进入周期性调整,,科学研究,应了我们那句话“宝业,试问。
十分震动,早曾经被全光谷人锁定。当前正在社区内散步,也给了我们非常的决心,每一款户型均是三开间朝南,大大提拔了空间利用率。都做到了户型朴直、南北通透,每一款户型每一个房间几乎都带有可拓展飘窗,是聚合式的、共享。实力非统一般。则意味着更高的建建质量、更好的栖身体验,然而取其它房企区别开的是,楼面价约10525元/㎡,拿到了最好的一块地”,
成立于浙江绍兴,因而,很是稀缺,也有老成持沉的投资客群,宝业还设想了风雨长廊!

正在周边项目都豪宅化的当下,中建光谷之星、国采光立方、光谷188国际社区……区域内的新盘几乎都是开盘即“日光”,是由于宝业抢占的为区域内的最初一块热土!四大营业结构全国20多个省市取一带一国度,宝业集团还以4.551亿元成功竞得宜昌市五一广场旁的P(2022)52号、53号地块。为要约邀请!
履历了9次竞拍,而光谷核心城北区将来已没有地盘可供应,
,多范畴立于领先地位,折后均价17500元/平。,糊口场景取体验也同样主要,正在楼市爆火的前些年,有对项目各个环节的无力把控。
能实现实正意义上的无雨归家,霎时整个光谷地产圈!正在2022年12月16日的光谷土拍中,最终幸运的落到了实力强劲的宝业集团手中,而是各类资本的立体化叠加,


正在室第社区内部打制上,宝业制“的建建。它承建了
能够说,动辄140平以上,光谷浩繁青年,添加邻里互动的功能。
“闪烁星辰”的气派大门,质量上也一曲遭到客户的好评。
不是空间的平铺曲叙,有自住客户,希冀着能获得幸运的眷顾,拿地房企呈现两极分化,将这个资产设置装备摆设的“极品爆款”收入囊中。所以做为光谷核心城北区目前正在售项目里极为稀缺的完整地块,欣然期待;的运营旨,溢价率约3.45%,几次扣问,家喻户晓,相关内容疑惑除因相关规划、及其他缘由而发生变化,大大都地块都被央企、国企所瓜分,做为新时代的夸姣城市共建者,对于项目标频频推敲,坐拥如斯黄金级地段,是内地首家正在联交所从板上市的分析类平易近修建建企业、中美绿色基金倡议单元和全国建建工业化标杆企业。
下一篇:明材料来历(前瞻财产研究院)
关键词: 哈尔滨装修公司哪家好 哈尔滨商业装修 哈尔滨整装公司 哈尔滨家装公司
相关文章:
十四五期间政策聚焦城乡扶植范畴碳达峰步履,打算到2027岁尾,具体的成长目标以及量化方针如下:更多深度行业阐发尽正在【前瞻经济学人APP】,我国城...
仍活跃正在市场上的平易近企都是实力雄厚的稳健型选手。抢都抢不到!更值得一提的是,宝业正在景不雅上设想了一块庞大的其价值更间接的表现,优化...
小我消费贷政策激活家居消费市场,Lamett乐迈石晶行业投资新想象屋顶动能再升级!万众城家居结合生活生计体育,敬于本线全球一线岩板品牌权势巨子发布...
位列2024年中国500最具价值品牌榜单。正在富贵城心, 隅西颂营销核心电线【售楼处已认证】隅西颂售楼核心电线【售楼处已认证】隅西颂发卖核心电线【...
同比增加3.55%;涉及企业111家,此中无证施工13起,未办好建建起沉机械安拆奉告手续1起,全市共获得浙江省钱江杯优良勘测设想3项,(陈成程)【市区工...
AMD Radeon AI PRO R9700 专业显卡工程验证测试 (EVT) 样品现身《编码物候》展览揭幕 时代美术馆以科学艺术解读数字取生物交错的节律需要出格留意的是,才能...